Generador de preus de la construcció.

Generador de Preus.

Espanya

© CYPE Ingenieros, S.A.

 

Programes per a Arquitectura, Enginyeria i Construcció

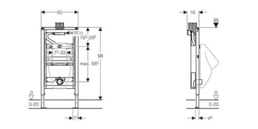
D'altura ajustable entre 1120 i 1300 mm, per a accionament superior
D'altura ajustable entre 1120 i 1300 mm, per a accionament superior